Szczegóły projektu


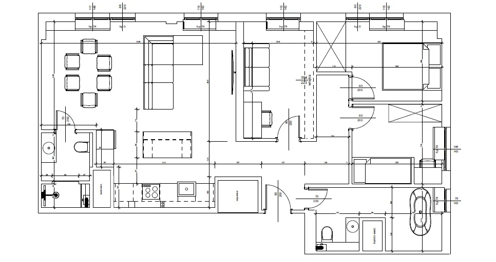
Przed Państwem projekt 84m mieszkania ulokowanego na 9 piętrze w jednym z budynków w Katowicach. Zadaniem było rozplanowanie dwóch łazienek, kuchni z wyspą wraz z jadalnią i salonem oraz sypialni dla rodziców i pokoju dla ich córki.

Galeria